威达机械
集研发、设计、生产、销售一站式服务
One stop service for research and development, design, production, and sales 在线咨询 >
quick response
Free customization
Worry free service
PRODUCT DETAILS
GX Spiral Conveyor Product Overview:
GX screw conveyor has been widely used in various sectors of the national economy, such as building materials, metallurgy, chemical industry, power, coal, machinery, light industry, grain and food industries. It is suitable for conveying powdery, granular, and small block materials, such as cement, coal powder, grain, fertilizer, ash, sand, coke, etc It is not suitable to transport materials that are prone to deterioration, high viscosity, and clumping. The working environment temperature of LS screw conveyor is usually -20~40 ℃, and the temperature of conveyed materials is generally -20~80 ℃. GX screw conveyor is suitable for horizontal and small inclination arrangement, and the inclination angle should not exceed 15 °. If the inclination angle is too large, please choose GX series screw conveyor or contact our technical department for separate design.
Main features and working principle of GX screw conveyor:
1. High load-bearing capacity, safe and reliable.
2. Strong adaptability, easy installation and maintenance, and long service life.
3. The whole machine has a small volume, high speed, and ensures fast and uniform conveying.
4. Good sealing performance, the shell is made of seamless steel pipe, and the ends are connected to each other with flanges to form a whole, with good rigidity.
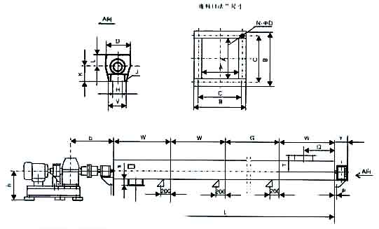
Installation diagram of GX series screw conveyor:

Main technical parameters of GX series screw conveyor:
| GX type | 200 | 250 | 300 | 400 | 500 |
| Spiral diameter (mm) | 200 | 250 | 315 | 400 | 500 |
| Pitch (mm) | 200 | 250 | 315 | 355 | 400 |
| rotational speed (r/min) | 90 | 90 | 75 | 75 | 60 |
| Conveying capacity QΦ=0.33(m3/h) | 11 | 22 | 36.4 | 66.1 | 93.1 |
| Power Pd 1=10m(KW) | 2.2 | 2.4 | 3.2 | 5.1 | 4.1 |
| Power Pd 1=30m(KW) | 3.2 | 5.3 | 8.4 | 11 | 15.3 |
| rotational speed (r/min) | 75 | 75 | 60 | 60 | 45 |
| Conveying capacity QΦ=0.33(m3/h) | 18 | 18 | 29.1 | 52.9 | 69.8 |
| Power Pd 1=10m(KW) | 2.1 | 2.1 | 2.9 | 4.1 | 4.7 |
| Power Pd 1=30m(KW) | 4.5 | 4.5 | 7 | 8.9 | 11.6 |
| rotational speed (r/min) | 60 | 60 | 45 | 45 | 35 |
| Conveying capacity QΦ=0.33(m3/h) | 15 | 15 | 21.8 | 39.6 | 54.3 |
| Power Pd 1=10m(KW) | 1.9 | 1.9 | 2.5 | 3.4 | 4.3 |
| Power Pd 1=30m(KW) | 3.8 | 3.8 | 5.4 | 6.8 | 9.2 |
| rotational speed (r/min) | 45 | 45 | 35 | 35 | 30 |
| Conveying capacity QΦ=0.33(m3/h) | 11 | 11 | 17 | 31.7 | 46.5 |
| Power Pd 1=10m(KW) | 1.6 | 1.6 | 2.1 | 3.1 | 3.7 |
| Power Pd 1=30m(KW) | 3.4 | 3.4 | 4.4 | 5.6 | 8 |
GX Spiral Conveyor Dimensions:
| model | W | A | B | C | D | N | R | Y | L | K | M | S | P | O | H | V | J | T | G |
| GX150 | 2000 | 170 | 236 | 216 | 10 | 8 | 190 | 190 | 112 | 140 | 100 | 135 | 17 | 270 | 110 | 160 | 16 | 195 | 1000、1500、2000 |
| GX200 | 2500 | 220 | 306 | 272 | 10 | 8 | 220 | 190 | 112 | 180 | 200 | 165 | 25 | 308 | 140 | 200 | 16 | 250 | 1500 |
| GX250 | 2500 | 270 | 356 | 330 | 10 | 8 | 270 | 190 | 140 | 220 | 195 | 28 | 356 | 200 | 260 | 20 | 300 | 2000 | |
| GX300 | 2500 | 320 | 428 | 385 | 14 | 8 | 300 | 190 | 214 | 270 | 225 | 28 | 443 | 240 | 320 | 20 | 350 | 2500 | |
| GX400 | 3000 | 420 | 528 | 492 | 14 | 8 | 350 | 190 | 224 | 340 | 300 | 280 | 30 | 533 | 320 | 400 | 25 | 430 | 1500 |
| GX500 | 3000 | 528 | 662 | 612 | 17 | 8 | 450 | 190 | 280 | 400 | 340 | 35 | 662 | 400 | 500 | 25 | 490 | 2000 | |
| GX600 | 3000 | 628 | 762 | 720 | 17 | 8 | 550 | 190 | 255 | 500 | 430 | 40 | 760 | 500 | 600 | 30 | 560 | 3000 |
Our advantages
Related products


